Modern Tropical Villa Leasehold in The Trendy Bingin, Bukit / Uluwatu
Rp 4.325.555.250
Rp 54.069.440,63/ Sqm
Rp 131.077.431,82/ Year
Description
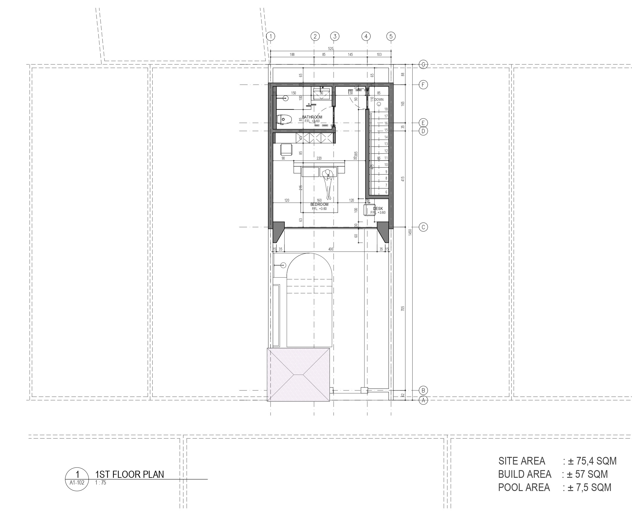
Experience tropical living in this charming 2-level villa located in the vibrant area of Bingin – Bukit / Uluwatu. Set on a compact yet well-utilized 80 sqm land plot, this fully furnished property features 1 bedroom with an ensuite bathroom, making it ideal for singles, couples, or as a high-yield rental investment. The interiors include an enclosed living room and enclosed kitchen, offering year-round comfort and privacy. Enjoy your own private pool, surrounded by a cozy garden, perfect for relaxing or entertaining.
The villa comes with private parking for both car and bike, a pool view, and is accessible via a 4-meter road. With a 57 sqm building size, this property holds an SLF building license and sits on touristic-zoned land (ITR), ensuring flexibility for rental use. Offered under leasehold for 33 years, this is a rare opportunity to secure a modern, low-maintenance villa in one of Bali’s most in-demand beachside destinations.
Other Details
Road Access
4 meters
Water Source
-
Building License
SLF
Parking
Car and Bike
Garden Backyard
Yes
Guest Toilet
1
Storage
No
Maid Room
No
Living Room
Enclosed
Furnishing
Yes
Pool Size
9 sqm
Parking Type
Private
Features
Accessible by Car
Fiber Optic
Garden Backyard
Hot Water
Smart TV
Basketball Court
Barbeque Area
Bath Tub
Dipping Pool
Gym
Home Theatre
Jacuzzi
Media Room
Oven
Restaurant
Roof Top
Security 24h CCTV
Security
Shared Community Space
Sunken Lounge
Tennis Court
TV
Floor Plan
leasehold
Bukit / Uluwatu - Bingin
Finished Built
ID : MDL453


















